AHlexander Hills Architects
Hammer Hill






Category:
Residential
Status:Â
On site
Year:
2021-2026
Area:Â
371sqm
Engineers:
Ruben Wood Structures
Contractor:
Big Sky Construction
Perched on a rise overlooking the Glaven Valley, Hammer Hill was built in the 1970s as a retirement home for the former owner of Old Rectory Farm. Sharing its neighbour's outlook but not its coherence, the house stood as a condensed echo of the larger farmstead - its promise of light and landscape undermined by awkward circulation, dim interiors and a lack of connection to the garden and views beyond.Â

A picture of the 1:20 model we made in card, balsa, and tin showing the two extensions and long west-facing veranda

A proposed view from the north

Axonometic view of the proposed stairs

A proposed view from the garden to the south

Details of the shingles on site August 2025

View of our model highlighting the active transition between north and west elevations via the ensuite balcony to bedroom 1

Model view of the end gable











Do you have a project or collaboration in mind?
Enquire here or via our contact form
Hammer Hill






Category:
Residential
Status:Â
On site
Contractor:
Big Sky Construction
Engineers:
Ruben Wood Structures
Year:
2021-2026
Perched on a rise overlooking the Glaven Valley, Hammer Hill was built in the 1970s as a retirement home for the former owner of Old Rectory Farm. Sharing its neighbour's outlook but not its coherence, the house stood as a condensed echo of the larger farmstead - its promise of light and landscape undermined by awkward circulation, dim interiors and a lack of connection to the garden and views beyond.Â

A picture of the 1:20 model we made in card, balsa, and tin showing the two extensions and long west-facing veranda
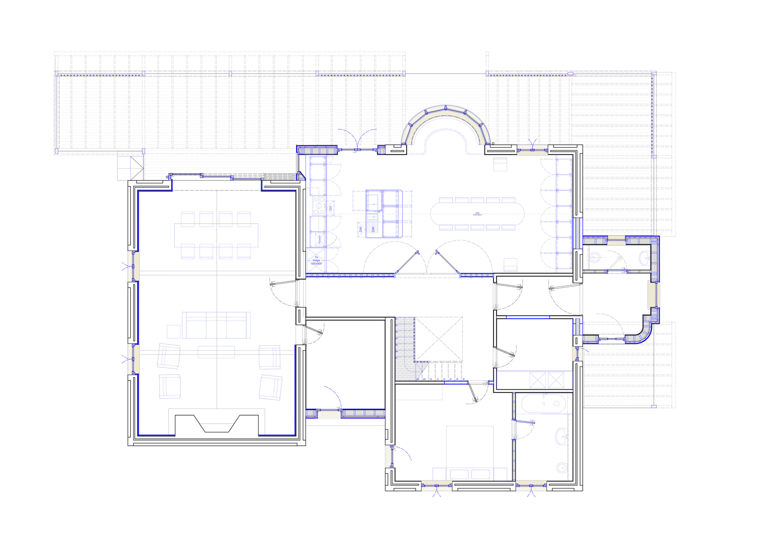
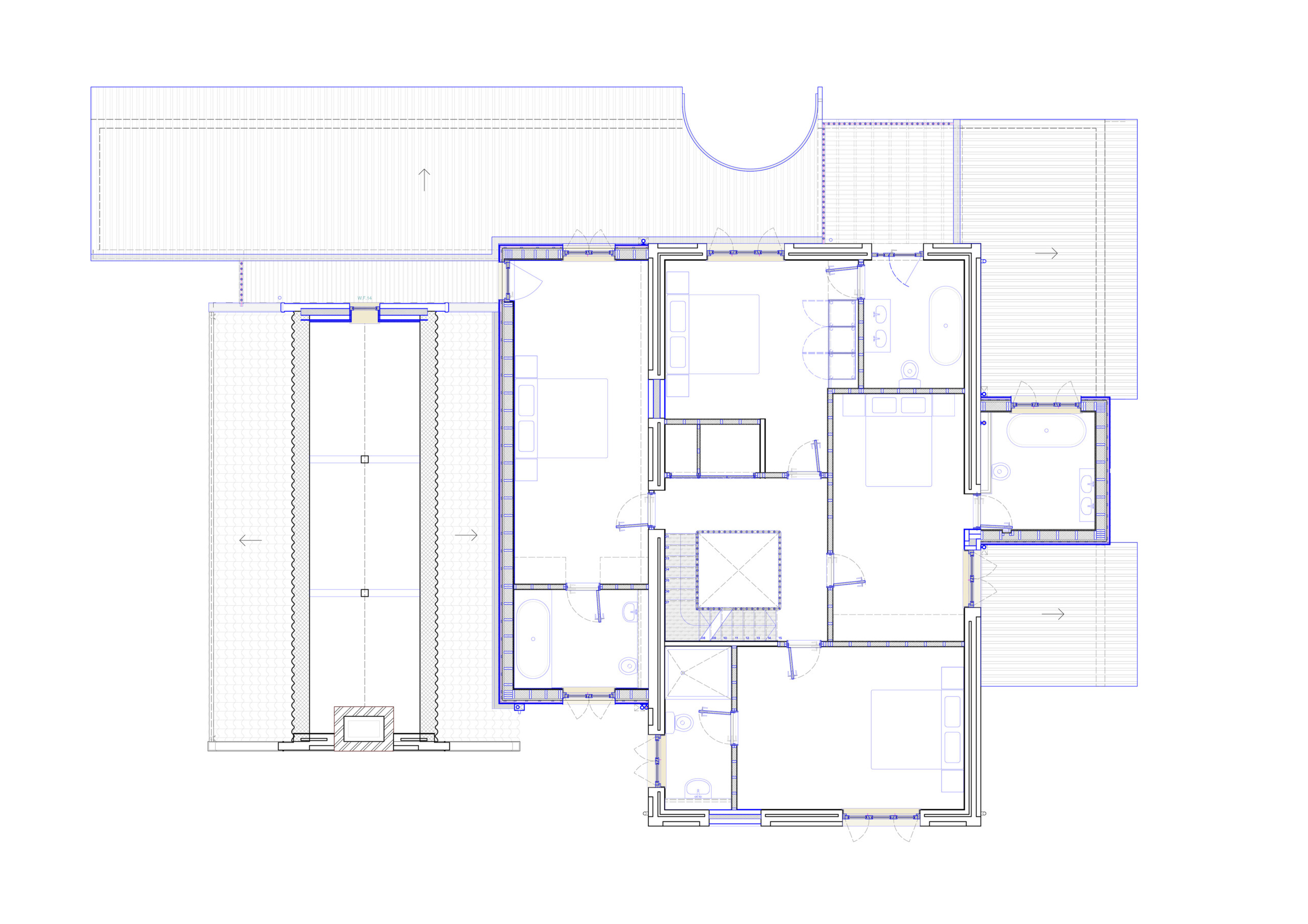
Our approach has been to completely reconfigure the plan, using the existing structure as much as possible to emphasise greater flow, accessibility, and connection to the countryside. The ground floor has been opened up and re-centred around an enlarged kitchen, conceived as the social heart of the house. The stair has been rebuilt and the landings reduced to allow light down from the upper floor, transforming the vertical movement through the building and sight lines through it. Each principal room now opens directly to the west and the flanking veranda, drawing the landscape inward and giving the house a clear rhythm from arrival to sleep.

A proposed view from the north

Axonometic view of the proposed stairs

Details of the shingles on site August 2025
Two new extensions complete the transformation. The larger, linking the main house to the smaller "barn room", introduces two bedrooms and a shower room, while a smaller northern wing marks the entrance with a new hall and bathroom above. Both are conceived as mono-pitched timber structures, continuing the rooflines of the existing buildings with a quiet precision.

View of our model highlighting the active transition between north and west elevations via the ensuite balcony to bedroom 1

Model view of the end gable











Related projects
Do you have a project or collaboration in mind?
Enquire here or via our contact form
Unit 13 — 39 Gransden Avenue, London E8 3QA
+44 (0)20 7183 0660 | studio@alexanderhills.com
Alexander Hills Architects is a private limited company, reg. in England & Wales, N° 11118686
Unit 13 — 39 Gransden Avenue, London E8 3QA
+44 (0)20 7183 0660 | studio@alexanderhills.com.
Alexander Hills Architects is a private limited company,
reg. in England & Wales, N° 11118686. Site credit